#Dream_Dare_Do!…
#Dream_Dare_Do!
אהלן חברים יקרים,
הפעם החלטתי לשתף אתכם ב"מבט מבפנים" של אחד התהליכים המקדימים בשיפוץ נכס???? .
כמו בכל נכס, ברגע שביצענו Walk Through (סיור בנכס) מומלץ מאוד לשרטט סקיצה ✏של הקומה אותה אנו רואים (רצוי עם מידות בכדי לקבל קנה מידה ופרופורציה).
לאחר שיש לנו את המידות, נוכל לתכנן את ה Layout החדש של החדר.????????
ישנם המון פרמטרים שמשפיעים על התכנית (כמו קונסרוקציה, מיקום הצנרת, קורות ועמודים תומכים ועד למיקום הנכס והדרישות שהשוק\שכונה בהם אנו נמצאים "מכתיבים" לנו את הסטנדרט), אבל *_שניים מהיתרונות הבולטים הם_*:
1. *נראות*????– קל יותר לתכנן ולקבל החלטות ברגע שהכל ויזואלי.
2. *עלויות חומרים*????????????– ניתן לתכנן את השיפוץ לרמה מאוד פרטנית של כל חומרי הגלם לפי סקוואר-פיט ולמנוע חריגות מיותרות.
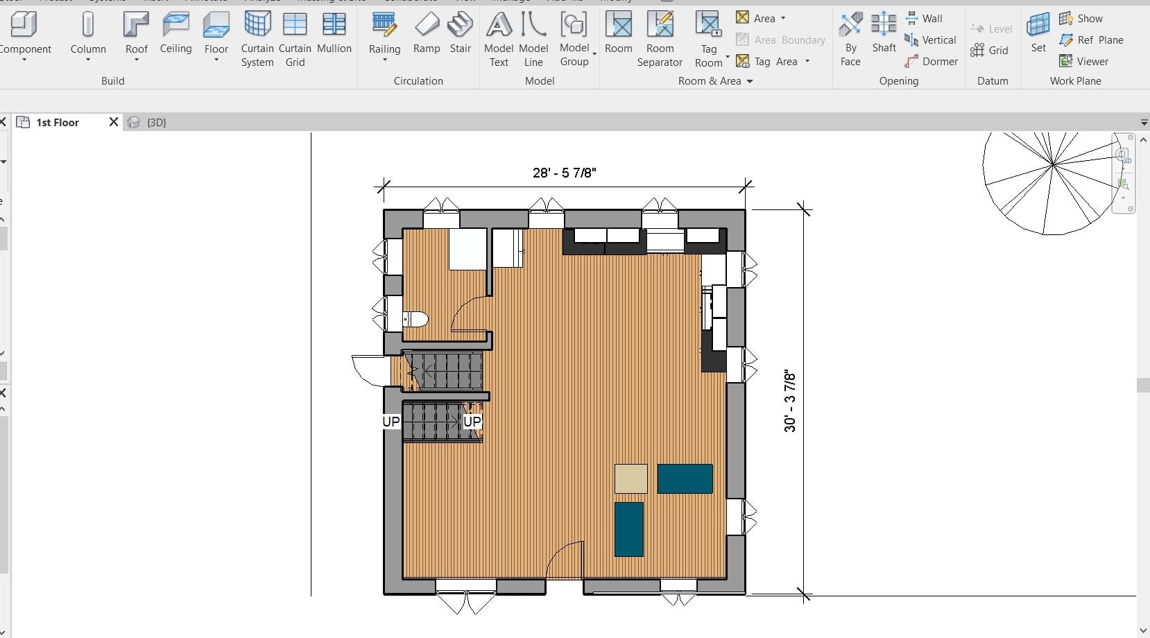
*_בתמונות:_*
????♂️סיור בנכס ומדידות (תמיד תצטיידו ב"מטר" ופנס בכדי לקחת מידות).
✏שרטוט סקיצה ידנית (רצוי עם מידות)
????????שרטוט ממוחשב והדמיית תלת מימדית (לא חייב- פה ניצלתי את הנסיון ההנדסי שלי)????.
מוזמנות ומומזמנים להציע Layout משלכם, נשמח לקבל פידבק ????
עריכה עקב השאלות: השתמשתי בתוכנת Revit עבור השרטוטים.
— with Roman Goldenberg in West Allis, Wisconsin.




קישור לפוסט המקורי בפייסבוק – עובד במחשב שולחני (לצפייה בפוסט יש להיות חברים שאושרו לפורום)


















רוויט התוכנה הזאת אחלה תוכנה שבעולם !!!
אם תרצה לדעת איך לשים שטחים של חדרים ולקבל טבלה מסודרת בתוכנה שלח הודעה